土地銀行 三峽分行

土地銀行 三峽分行

業主 生才實業股份有限公司
地點 新北市樹林區大學段
用途 銀行
層數 地上兩層
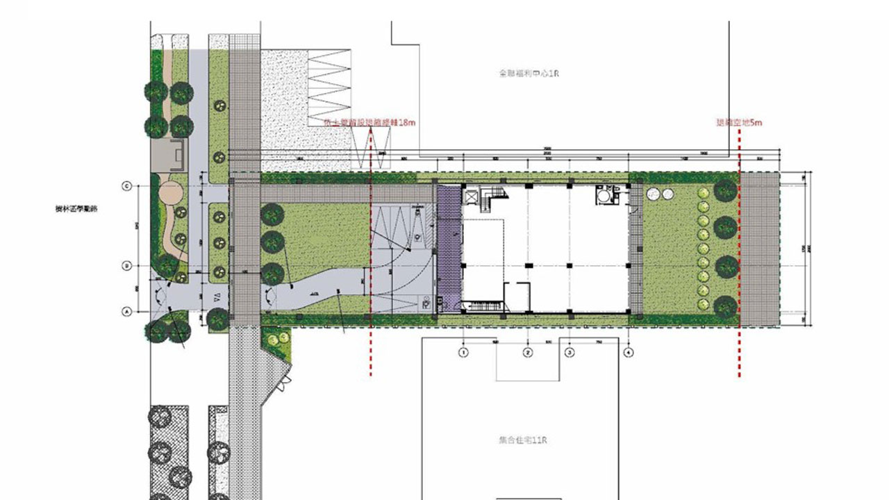
基地面積 1368 m²
建築面積 413 m²
樓地板面積 749 m²
企業精神   文化脈絡的傳承
本案由土地銀行前身日治時期之"勸業銀行"作為概念的起點,擷取傳統柱廊與頂蓋之建築語彙,傳承銀行建築符號意象,進而轉換以現代手法呈現,彰顯企業永續與邁向未來之精神。
傳統與現代   輕與重的對比
相較於多以厚重石材建築之傳統銀行,本案之設計僅採傳統語彙作為"穩重、安定"之概念傳達,但以現代性材料如面磚、清水模、玻璃與圓形鋼柱等予人輕量化現代感受,突破材料限制,達到輕與重、創新與傳統之間的平衡。
留白對話   前院與後院
銀行正前方求留設18米開放庭園,可從人行步道沿著綠帶植栽進到門廊,與建築物形成良好對話,同時於後側留設14米後院,提供辦公人員優美的視野景觀與環境氛圍,體現基地留白綠化之價值。